Kulturvärde och klassificering

Gulklassad - bebyggelse av positiv betydelse för stadsbilden

Av Stadsmuseet i Stockholm har hela stadsdelen Traneberg med sina karakteristiska smalhus från senare delen av 1930-talet kulturklassats. Typiskt för smalhusbebyggelse är de slätputsade fasaderna med balkonger och ospröjsade fönster.

Bostadsrättsföreningen Drömkåken 2 ligger i kvarteret Halleberg 2 i Traneberg med adress Hunnebergsvägen 11 och 13. Den andra halvan av huset med nummer 15 och 17 ägs av bostadsrättsföreningen Halleberg 1.

Inspirationen från Berlin

Inspirationen till bebyggelsen i Traneberg fick Stockholms stads politiker och tjänstemän vid en bomässa i Berlin i början av 1930-talet. Det är smala hus i tre våningar som släpper in ljus från alla håll. Lägenheterna är små men välplanerade, de flesta på två rum, kök och badrum på 51 kvadratmeter, med sex lägenheter i varje trappuppgång.

Alla lägenheter har balkong och förråd. Lägenheterna hade från början elektricitet och rinnande vatten. I badrummen fanns badkar och "vattenklosett". Husen hade centralvärme, gemensam tvättstuga, snickarverkstad och matkällare. På varje våningsplan fanns sopnedkast. Allt detta var, när husen byggdes, lyx som var få förunnat.

Strax efter den omtalade Berlinresan utarbetades stadsplanen för Traneberg. Området kom att bli den första förorten i sitt slag i Stockholm, men skulle följas av många. Byggandet i Traneberg tog fart 1934 och pågick i fem år.

Stadsplan för kvarteren Halleberg och Hunneberg, Traneberg 1934
Förslag till ändring av stadsplanen för kvarteren Halleberg och Hunneberg, stadsdelen Traneberg i Stockholm. Stockholms stads stadsplanekontor, 6 oktober 1934. Ladda ner original (PDF)

Bröderna Bergström kliver in

Den 31 augusti 1934 invigdes Tranebergsbron och Stockholms stads utveckling västerut tog sin början. Markinköpen hade staden ombesörjt långt tidigare. Ett par månader efter den pampiga invigningen av bron skickade den privata byggnadsfirman Bröderna Bergström i Stockholm, med bröderna Bror och Karl, in en ansökan om att få uppföra ett bostadshus "å tomt nr 2 i kvarteret Halleberg inom Traneberg". Karl står som byggnadsingenjör i brevet.

Det fanns till en början tre aktörer i fastigheten. Det var staden med sina olika förvaltningar, byggherren och slutligen husägaren. När byggherren kom in i bilden fanns redan vägen, vägnamnet, kvarteret och tomtkartan.

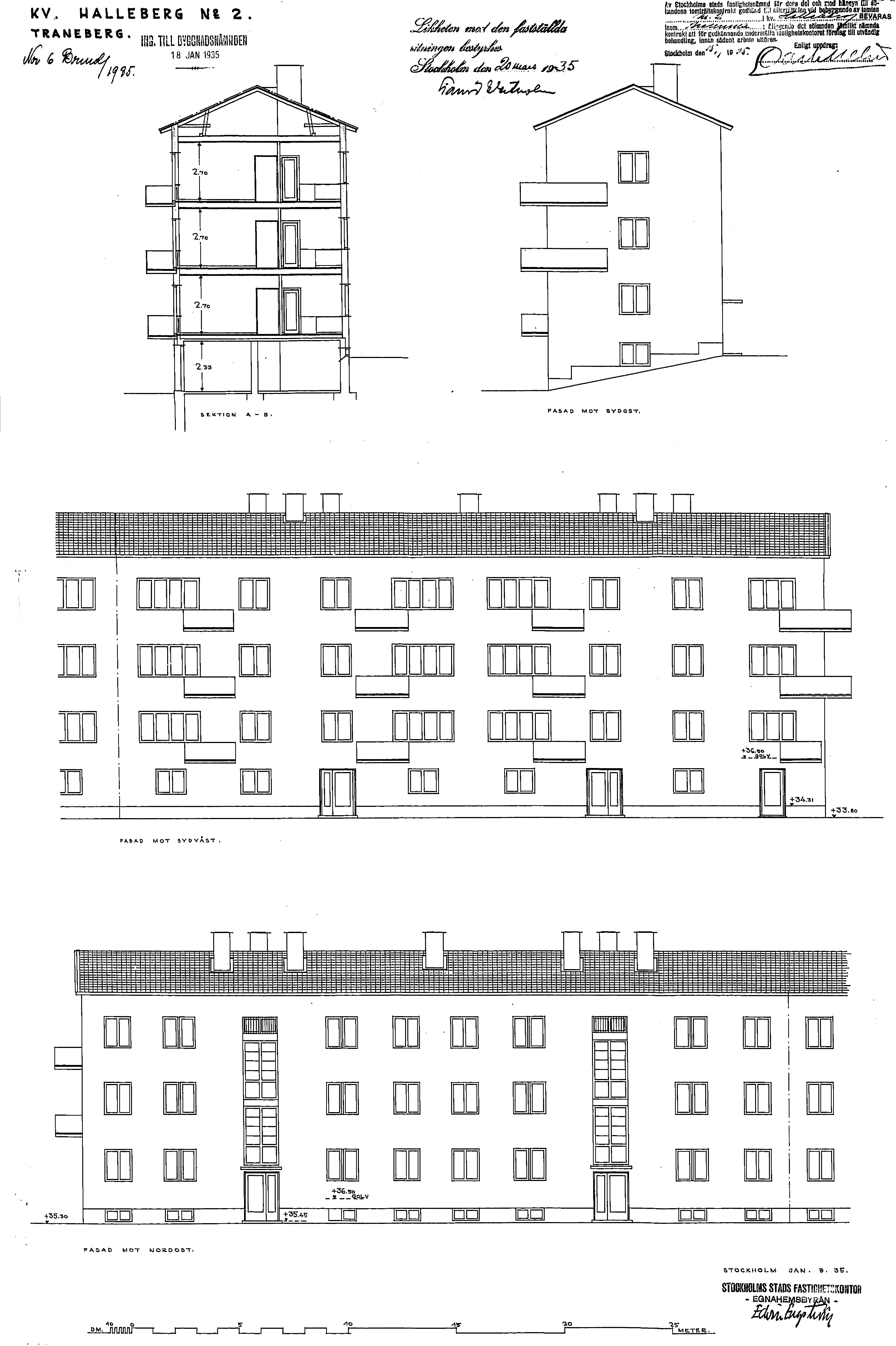
Papperet med ansökan hann knappt landa på byggnadsnämndens bord innan arbetet med att få igång bygget startade. Det gick rasande fort. Redan i januari 1935 hade stadens egnahemsbyrå under ledning av arkitekten Edvin Engström tagit fram ritningar och bygghandlingar. Engström verkade i 45 år i stadens tjänst och ligger bakom ett tusental byggnader i Stockholms stads förorter, bland annat denna.

Hela byggprojektet Halleberg 1 och 2 kom att ta ett år, från första handlingen till slutbesiktning. Redan i mars månad 1935 var alla beslut tagna så att bröderna Bergström kunde sätta spadarna i jorden. Det tog dem sex månader att färdigställa huset. I månadsskiftet september/oktober kom de första hyresgästerna. I december var huset besiktigat och klart.

Fasad- och sektionsritning av Edvin Engström, 1935
Fasad- och sektionsritning för Kv. Halleberg Nr 2, Traneberg. Signerad av arkitekten Edvin Engström vid Stockholms stads egnahemsbyrå, januari 1935.

Byggfirman sålde huset

När huset var färdigbyggt såldes det till en familj som kom att äga det under mer än ett halvt sekel. Det var affärsmannen och direktören Ernst Anderberg med hustru Binéa, född Österberg, och deras barn och barnbarn. De blev hyresvärdar till slutet av 1980-talet.

Då såldes halva delen, Halleberg 2, till en ny ägarfamilj, som i sin tur efter endast nio år sålde det till den då nybildade Brf Drömkåken 2. Den andra delen av fastigheten blev kvar i den ursprungliga ägarfamiljen ytterligare i nära 20 år. Då bildades den bostadsrättsföreningen Halleberg 1.

Hyresgästerna

I början av oktober 1935 flyttade de första hyresgästerna in. Enligt kyrkans inflyttningsbok tog det ett år innan alla lägenheter var bebodda. Det var inte så att alla kom på en gång utan de droppade in successivt.

De flesta som flyttade in var mellan 26 och 46 år gamla, ensamstående eller i par, många nygifta. Det var en ingenjör, en köpman, en trädgårdsmästare, en avdelningschef, en stationsskrivare, en kamrer, en disponent, en ritare, ett hembiträde, en husföreståndarinna, några fröknar och frånskilda. Till en början var rörligheten stor. Nära hälften flyttade efter något eller ett par år, men bland de som stannade kvar, stannade många mycket länge.

Några flyttade in som gamla. Äldst var fröken Hilma Bundsén, 83. Hon var född 1852. Trots sin höga ålder bodde hon ändå i fastigheten i hela 11 år.

Huset kanske mest kända person var också det en kvinna och var till åren när hon flyttade in. Det var den välutbildade musikern Elsa Stenhammar. Hon var 70 när hon lämnade Göteborg för en flytt till Traneberg. Hon var Sveriges första stora kvinnliga kördirigent och förutom körledare också organist och sångerska. Hon stannade i huset i ca 20 år.

En annan som bodde kvar länge, ja längst av alla, var skrivbiträdet Margit Fryklöf. Hon var en av de första som flyttade in, då till en lägenhet på tredje våningen. Hon var 28 år och frånskild. Med sig hade hon sin sexårige son. Margit Fryklöf bodde kvar ända tills det att bostadsrättsföreningen bildades 1997, alltså i över 60 år.

Ur Dagens Nyheter - lediga lägenheter

Annonser insatta av byggfirman Bröderna Bergström, 1935-1936.

Annons i Dagens Nyheter: Kv. Halleberg, Traneberg - Vackra, moderna 2-rumslägenheter
"Kv. Halleberg, Traneberg. Vackra, mod. 2 r. Läg. m. matr. Ljusa badr., solbalk., mot härlig tallpark."
Annons i Dagens Nyheter: Hunnebergsvägen 11-17, Traneberg
"Hunnebergsvägen 11-17, Traneberg. Plank o. spiror samt dynamitkur säljes."
Detalj från fastigheten
Utsikt mot Alviksskolan och den så kallade Tornbyggnaden.

Drömkåken 2

Idag ägs halva huset av Brf Drömkåken 2, bildad 1997, och andra halvan av Brf Halleberg 1, bildad 2016.

Ägarparet som köpt fastigheten Halleberg 2 i slutet av 1980-talet ställde, när de tänkte sälja, frågan först till hyresgästerna om de önskade ta över och bilda bostadsrättsförening. De nappade. En av de som då bott länge i huset och alltjämt gör det var Fredrik Johanesson. Han skapade en grupp kring sig och påbörjade arbetet. I december 1997 var köpet klart och bostadsrättsföreningen Drömkåken 2 bildad. Fredrik blev föreningens första ordförande och allt-i-allo och förblev så i nära två decennier. Idag heter ordföranden Alexander Norman.

Varför då namnet Drömkåken 2? Inspirationen kom från den då aktuella filmen Drömkåken, huset som ruvade på en livsfarlig hemlighet. En viss galghumor låg bakom namnet, säger Fredrik och fortsätter: "Vi visste inte om vi gjorde ett bra eller dåligt val när vi bildade föreningen. Tiderna då var annorlunda mot nu och prisutvecklingen kunde ingen ana."

Källor

  • Arkiv vid Stockholms stads stadsbyggnadskontor
  • Stockholmskällan
  • Mantalslängder och Bromma församlings kyrkböcker genom Riksarkivet och Arkiv Digital
  • Riksantikvarieämbetets bebyggelseregister
  • Smalhus Framtidshem! Rapport från Statens råd för byggnadsforskning 1978
  • Samtal med Fredrik Johanesson, f.d. ordförande i Brf Drömkåken 2 och drivande i bildandet av föreningen
  • Samtal med Jan Ekstrand, f.d. ordförande för Brf Halleberg 1, tidigare fastighetens vaktmästare och hustomte och gift med Ernst och Binéa Anderbergs barnbarn

Research och textmaterial: Ingalill Tengvall

Originaldetaljer och väggmålningar

I vår fastighet finns många originaldetaljer kvar från det att huset byggdes, exempelvis väggmålningarna vid entréerna. I samband med en senare ommålning i uppgångarna har väggmålningarna bevarats, men i beskuret skick.

Väggmålning i trapphuset, Hunnebergsvägen 11
Bågskyttemotiv, Hunnebergsvägen 11.
Väggmålning i trapphuset, Hunnebergsvägen 13
Älg i vinterlandskap, Hunnebergsvägen 13.

Vem målaren var vet man inte. I samband med Stockholms stadsmuseums inventering av bebyggelsen i Traneberg 1985 försökte man tolka en signatur som finns på en bevarad målning i grannföreningen, men utan att lyckas. Det fanns under 30-talet många duktiga yrkesmålare som dekorerade trappuppgångar och väggpartier. Alltjämt finns i Stockholms äldre husbestånd många av dessa målningar bevarade, som i vår fastighet.

Originalfärgen i våra trapphus är bottenfärgen i väggmåleriet, som med åren troligen mörknat av sot och smuts. Om man ska rengöra målningen måste man veta vilket bindemedel målaren använt för sina färger - olja eller limfärg, hur starkt eller svagt pigmentet är bundet. Det visar hur tålig ytan är för rengöring. Så småningom får föreningen ta in expertis i samband med ommålning av trappuppgångarna.

Visa fler originaldetaljer

I trappuppgångarna sitter originalarmaturerna kvar, vackra klotlampor i mässing typiska för 1930-talet. På vinden finns den ursprungliga brandföreskriftstavlan från Stockholms stad, med anvisningar undertecknade av Brandchefen.

Originalarmatur från 1935 i trapphuset
Originalarmatur i trapphuset, bevarad sedan 1935.
Brandföreskrifter från Stockholms stad
Brandföreskriftstavla från Stockholms stad på vinden.

Bildgalleri